Neubau Wohnen + Quartiere 2022

Feuerweg am Plärrer

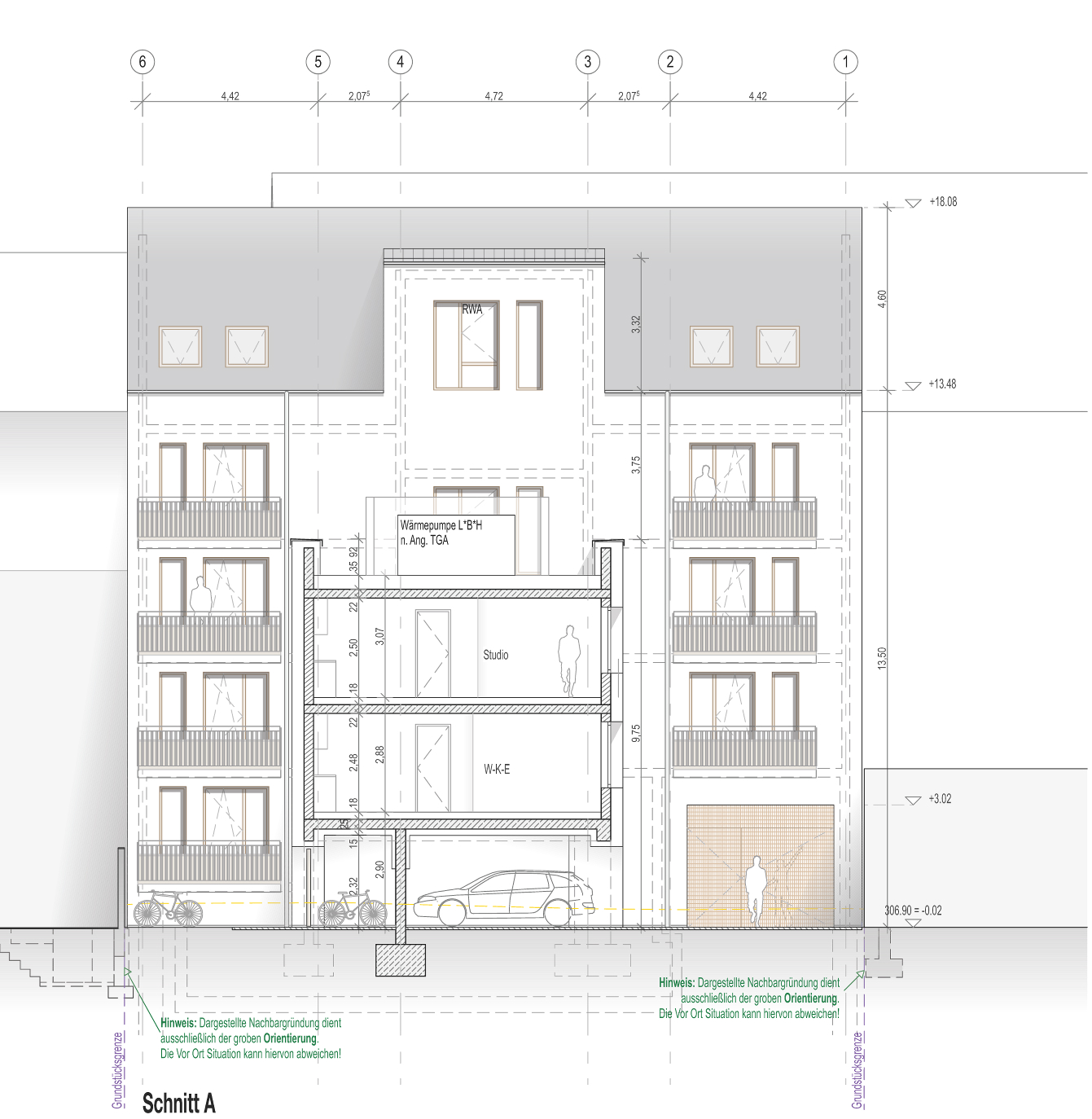
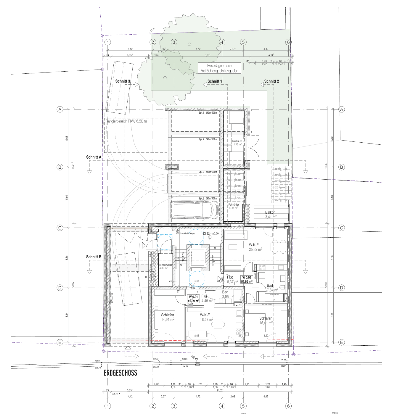
Im Projekt Feuerweg am Plärrer in Nürnberg setzen wir auf modernste 3D-Modellierung, um Architektur bis ins kleinste Detail durchdacht zu gestalten. Durch digitale Planung können wir frühzeitig räumliche Strukturen optimieren, baurechtliche Vorgaben integrieren und eine präzise Abstimmung mit allen Gewerken ermöglichen.

Effizienz und Ästhetik vereint

Die digitale Modellierung erlaubt uns, komplexe Bauteile visuell darzustellen und so eine ideale Balance zwischen Funktionalität, Sicherheit und Gestaltung zu erreichen. Jedes Element – von der Gebäudestruktur über Materialkonzepte bis hin zu technischen Anforderungen – wird exakt erfasst und im Modell überprüft.

Ein Projekt, das Maßstäbe setzt

Das Feuerweg-Projekt zeigt, wie digitale Planungsprozesse die Architektur erleichtern. Durch die enge Verzahnung von 3D-Modellierung und interdisziplinärer Zusammenarbeit schaffen wir eine zukunftsfähige, präzise und nachhaltige Umsetzung, die von unseren Projektpartnern auch als solche wahrgenommen wird.